




Vasca inclinata di raccolta in metallo per cisternette da 1000 LT IBC con para spruzzi
Travaso Sicuro con Protezione Laterale
La Vasca inclinata di raccolta Needcontainers con paraspruzzi integrati è progettata per lo svuotamento sicuro delle cisternette IBC da 1000 litri. Grazie al supporto inclinato, permette travasi, dosaggi e svuotamenti completi senza manovrare la cisterna. Inoltre, le pareti di protezione in lamiera zincata bloccano schizzi, gocciolamenti e fuoriuscite laterali. In questo modo, garantisce massima sicurezza per operatori e ambiente, rispettando il Decreto Ministeriale 18.05.1995.
Struttura Certificata e Resistente
Realizzata in acciaio al carbonio S235JR o superiore, la Vasca inclinata di raccolta ha uno spessore di 3 mm (30/10). Le saldature sono controllate elettronicamente per garantire tenuta stagna assoluta. Le dimensioni rispettano gli standard UNI, assicurando stabilità anche con carichi pesanti. Per questo motivo, è dotata di entrate per forche, per un sollevamento rapido con carrelli elevatori.
Grigliato Zincato e Paraspruzzi Integrati
Il grigliato superiore è in acciaio zincato a caldo e pressato, resistente a carichi elevati e sostanze aggressive. Le pareti paraspruzzi laterali e posteriori aggiungono un livello extra di contenimento, ideale per liquidi infiammabili, acidi o tossici. Infatti, riducono drasticamente il rischio di esposizione accidentale.
Finiture Personalizzabili per Ogni Contesto
Offriamo diverse opzioni su richiesta: verniciatura a polvere epossidica, verniciatura liquida mono/bicomponente, zincatura a freddo o a caldo.
A disposizione qualsiasi tinta RAL (da concordare in base ai quantitativi).
Soluzioni Su Misura, Sempre Conformi
Grazie alla nostra esperienza, possiamo realizzare Vasche inclinate di raccolta con angolazioni personalizzate, altezze di paraspruzzi variabili o integrazioni con sistemi di drenaggio. Tutti i materiali sono tracciabili e provengono da fornitori storici certificati UNI EN ISO 9001. Proprio per questo, ogni unità unisce efficienza operativa, sicurezza avanzata e piena conformità normativa.
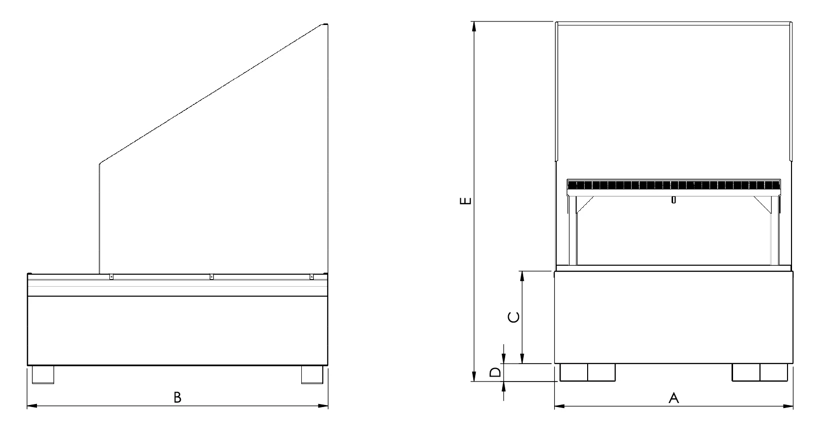
Info Misure
Codice prodotto | A | B | C | D | E | Capacità |
---|---|---|---|---|---|---|
SVRIP1C | 1340 | 1690 | 520 | 100 | 2030 | 1 Cisterna 1000 Lt |
SVRIP2C | 2720 | 1680 | 250 | 100 | 1760 | 2 Cisterne 1000 Lt |
SVRIP3C | 3434 | 1690 | 350 | 100 | 1860 | 3 Cisterne 1000 Lt |
A=Lunghezza, B=Larghezza, C=Altezza utile, D=Altezza del piede, E=Altezza totale, Le misure sono espresse in millimetri
Trattamento superficiale
Verniciature e altri trattamenti disponibili dei prodotti
Prodotto | Trattamento |
---|---|
Vasca inclinata di raccolta in metallo per cisternette da 1000 LT IBC con para spruzzi |
|

Vuoi richiedere un preventivo? Contattataci
Se ottenere informazioni, oppure richiedere un preventivo per questo prodotto, non esitare a contattarci.
Altri Prodotti
Altre Categorie
Richiedi un Preventivo!
Compila il modulo seguente per
richiedere un preventivo.
- Seleziona un prodotto
- Compila i campi richiesti
- Ricevi una risposta