





Vasca inclinata di raccolta in metallo per cisternette da 1000 LT IBC
Travaso Facile e Sicuro Grazie all’Inclinazione
La Vasca inclinata di raccolta Needcontainers è progettata per ottimizzare lo svuotamento delle cisternette IBC da 1000 litri. Grazie al supporto inclinato integrato, permette travasi, dosaggi e svuotamenti completi senza sollevare, inclinare manualmente o manovrare la cisterna. In questo modo, riduce il rischio di infortuni e fuoriuscite accidentali. Le Vasche inclinate di raccolta sono la soluzione ideale per aziende che cercano efficienza operativa e piena conformità al Decreto Ministeriale 18.05.1995.
Struttura Certificata e Resistente
Realizzata in acciaio al carbonio S235JR o superiore, la Vasca inclinata di raccolta ha uno spessore di 3 mm (30/10). Le saldature sono controllate elettronicamente per garantire tenuta stagna assoluta. Inoltre, le dimensioni rispettano gli standard UNI, assicurando stabilità anche con carichi pesanti. Per questo motivo, è dotata di entrate per forche, per un sollevamento rapido con carrelli elevatori.
Grigliato Zincato per Massima Durata
Il grigliato superiore è in acciaio zincato a caldo e pressato, progettato per resistere a carichi elevati e sostanze aggressive. Infatti, garantisce drenaggio, stabilità e lunga durata, anche in ambienti industriali o esterni.
Finiture Personalizzabili per Ogni Esigenza
Offriamo diverse opzioni su richiesta: verniciatura a polvere epossidica, verniciatura liquida mono/bicomponente, zincatura a freddo o a caldo.
A disposizione qualsiasi tinta RAL (da concordare in base ai quantitativi).
Soluzioni Su Misura, Sempre Conformi
Grazie alla nostra esperienza, possiamo realizzare Vasche inclinate di raccolta con angolazioni personalizzate, dimensioni speciali o integrazioni con sistemi di drenaggio. Tutti i materiali sono tracciabili e provengono da fornitori storici certificati UNI EN ISO 9001. Proprio per questo, ogni unità unisce sicurezza, efficienza e conformità normativa in un unico sistema.
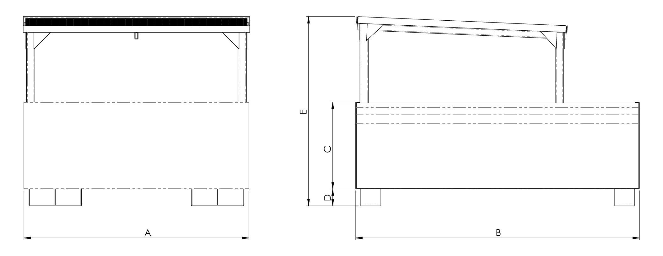
Info Misure
Codice prodotto | A | B | C | D | E | Capacità |
---|---|---|---|---|---|---|
SVRI1C | 1340 | 1690 | 520 | 100 | 1130 | 1 Cisterna 1000 Lt |
SVRI2C | 2720 | 1690 | 250 | 100 | 860 | 2 Cisterne 1000 Lt |
SVRI3C | 3434 | 1690 | 350 | 100 | 960 | 3 Cisterne 1000 Lt |
A=Lunghezza, B=Larghezza, C=Altezza utile, D=Altezza del piede, E=Altezza totale, Le misure sono espresse in millimetri
Trattamento superficiale
Verniciature e altri trattamenti disponibili dei prodotti
Prodotto | Trattamento |
---|---|
Vasca inclinata di raccolta in metallo per cisternette da 1000 LT IBC |
|

Vuoi richiedere un preventivo? Contattataci
Se ottenere informazioni, oppure richiedere un preventivo per questo prodotto, non esitare a contattarci.
Altri Prodotti
Altre Categorie
Richiedi un Preventivo!
Compila il modulo seguente per
richiedere un preventivo.
- Seleziona un prodotto
- Compila i campi richiesti
- Ricevi una risposta