










Deposito in metallo per Fusti
Stoccaggio Esterno Conforme e Protetto
Il Deposito in metallo per fusti Needcontainers è progettato per essere installato all’esterno, proteggendo il contenuto dagli agenti atmosferici come pioggia, sole e polvere. In questo modo, garantisce sicurezza sul lavoro e tutela ambientale, rispettando tutte le normative europee e il Decreto Ministeriale 18.05.1995. Grazie alla sua struttura chiusa, impedisce accessi non autorizzati e dispersione di vapori pericolosi.
Struttura Robusta e Certificata
Realizzato in acciaio S235JR o superiore, il Deposito include una vasca ecologica in acciaio al carbonio (spessore 3 mm / 30/10) con tenuta stagna certificata. Le saldature sono controllate elettronicamente e le dimensioni rispettano gli standard UNI. Inoltre, è dotato di entrate per forche, per un sollevamento rapido con carrelli elevatori.
Design Funzionale e Sicuro
L’interno presenta un grigliato zincato rimovibile per ispezioni e manutenzione. Le pareti laterali hanno fessure di aerazione per ricambio d’aria controllato. La porta a battente assicura accesso rapido, mentre la copertura servoassistita — con pistone idraulico e maniglia — si apre e chiude con facilità, anche in condizioni avverse.
Finiture Personalizzabili per Ogni Esigenza
Disponibile sia verniciato che zincato (a richiesta, su sovrapprezzo). Offriamo diverse opzioni: verniciatura a polvere epossidica, verniciatura liquida mono/bicomponente, zincatura a freddo o a caldo.
A disposizione qualsiasi tinta RAL (da concordare in base ai quantitativi).
Soluzioni Su Misura per il Tuo Impianto
Grazie alla nostra esperienza, realizziamo Depositi personalizzati: dimensioni speciali, accessori aggiuntivi, integrazioni impiantistiche. Tutti i materiali sono tracciabili e provengono da fornitori storici certificati UNI EN ISO 9001. Proprio per questo, ogni Deposito unisce sicurezza, conformità e flessibilità operativa.
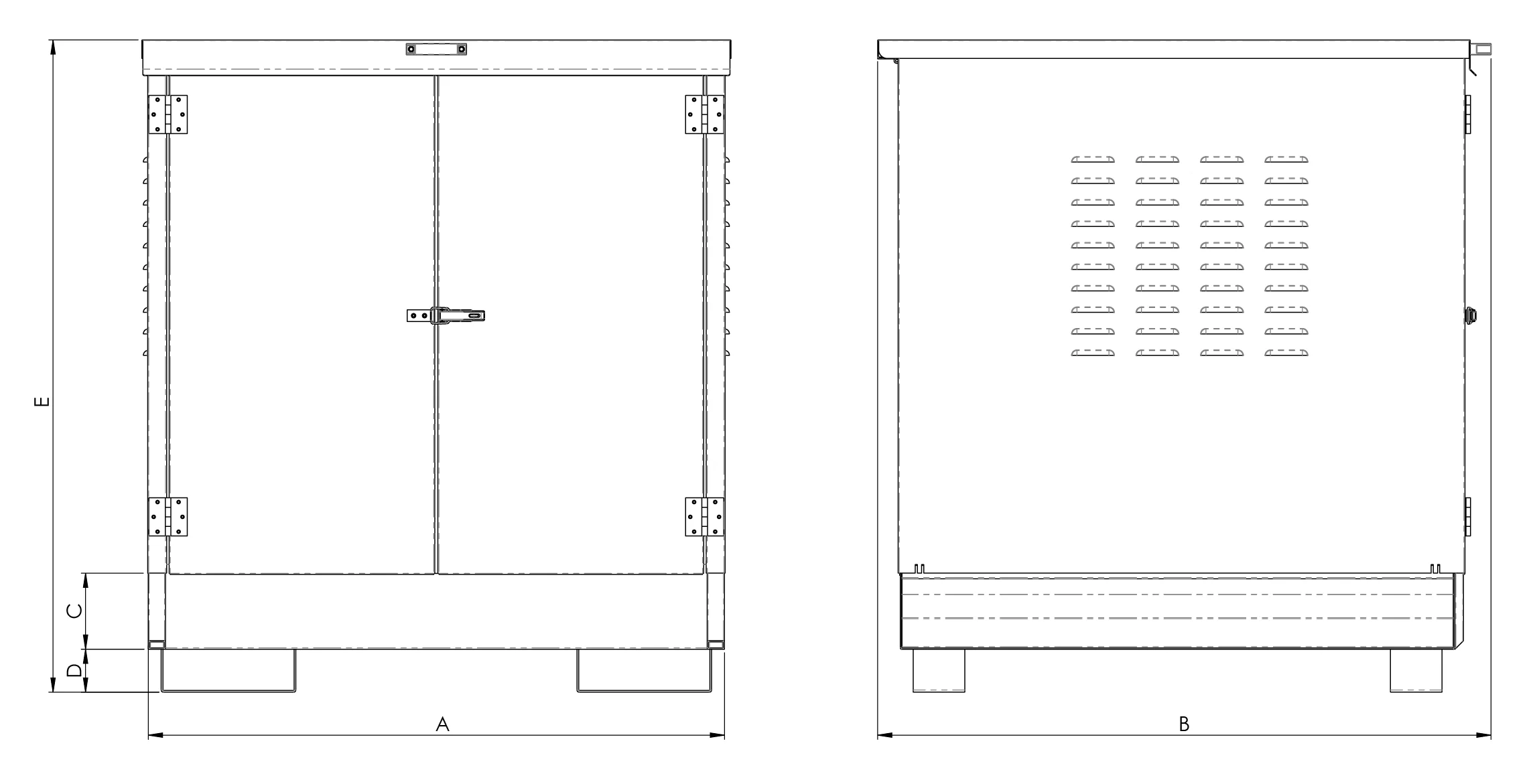
Info Misure
Codice prodotto | A | B | C | D | E | Capacità (Lt) | Portata (kg) | Capacità | Caratteristiche |
---|---|---|---|---|---|---|---|---|---|
SASF1F | 930 | 996 | 269 | 100 | 1610 | 217 | 300 | 1 Fusto 200 Lt | Coperchio servoassistito |
SASF2F | 1410 | 987 | 212 | 100 | 1553 | 276 | 500 | 2 Fusti 200 Lt | Coperchio servoassistito |
SASF4F | 1370 | 1427 | 177 | 100 | 1518 | 351 | 900 | 4 Fusti 200 Lt | Coperchio servoassistito |
SASF8F | 2728 | 1373 | 182 | 100 | 1521 | 712 | 1700 | 8 Fusti 200 Lt | Coperchio fisso |
A=Lunghezza, B=Larghezza, C=Altezza utile vasca, D=Altezza del piede, E=Altezza totale, Le misure sono espresse in millimetri.
Trattamento superficiale
Verniciature e altri trattamenti disponibili dei prodotti
Prodotto | Trattamento |
---|---|
Deposito in metallo per Fusti |
|

Vuoi richiedere un preventivo? Contattataci
Se ottenere informazioni, oppure richiedere un preventivo per questo prodotto, non esitare a contattarci.
Altri Prodotti
Altre Categorie
Richiedi un Preventivo!
Compila il modulo seguente per
richiedere un preventivo.
- Seleziona un prodotto
- Compila i campi richiesti
- Ricevi una risposta